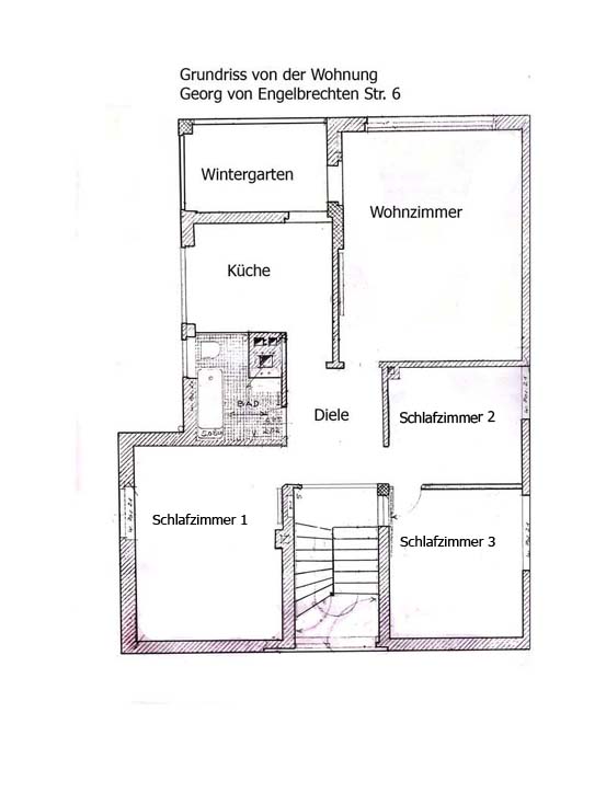
grundriss